Fantovu louku v Příbrami čeká změna. Zastupitelé budou ve středu řešit územní plán i stavební uzávěru
3. prosince 2025 (09:10)
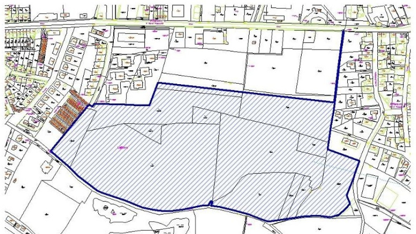
foto: Označené území, o kterém se bude jednat. / MěÚ Příbram
Na středečním 3. prosince zasedání zastupitelstva města Příbram se bude projednávat také změna územního plánu města, která se týká lokality Fantova louka.
O čem se bude hlasovat
Zastupitelé mají na stole několik kroků:
Zastupitelé mají na stole několik kroků:
- zda se změna územního plánu vůbec začne pořizovat,
- schválení zadání změny, na jehož základě projektant připraví návrh,
- sloučení jednání s dotčenými orgány a veřejností,
- doporučení stavební uzávěry, která by dočasně zakázala stavby v celé lokalitě, aby se předešlo komplikacím při přípravě změny.
Proč se změna připravuje
Podnět ke změně schválilo zastupitelstvo už v roce 2024, v roce 2025 byl upřesněn. Návrh zadání konzultovali právníci i Výbor pro územní plánování — řešila se například regulace hloubky zakládání staveb v severní části území.
Krajský úřad i odbor životního prostředí potvrdily, že změna nebude mít významný vliv na chráněné lokality a nebude vyžadovat posouzení vlivů na životní prostředí (SEA).
Stavební uzávěra
Pokud bude vyhlášena, zakáže dočasně stavební činnost v celé lokalitě Fantovy louky. Cílem je zabránit stavbám, které by mohly ztížit budoucí využití území podle připravované změny. Podle právní analýzy města vlastníci nebudou mít nárok na náhradu škody, protože od účinnosti současného územního plánu už uplynulo více než pět let.
Co bude dál
Pokud zastupitelé zadání schválí, projektant zpracuje návrh změny územního plánu lokality Fantova louka. Ten bude následně projednáván s dotčenými orgány veřejně.
Co to znamená pro obyvatele
Fantova louka se řeší už několik let a prosincové zastupitelstvo může být dalším důležitým krokem. Rozhodnutí o změně územního plánu a případné stavební uzávěře tak může nastínit, jak se bude s lokalitou nakládat v příštích letech.
Podnět ke změně schválilo zastupitelstvo už v roce 2024, v roce 2025 byl upřesněn. Návrh zadání konzultovali právníci i Výbor pro územní plánování — řešila se například regulace hloubky zakládání staveb v severní části území.
Krajský úřad i odbor životního prostředí potvrdily, že změna nebude mít významný vliv na chráněné lokality a nebude vyžadovat posouzení vlivů na životní prostředí (SEA).
Stavební uzávěra
Pokud bude vyhlášena, zakáže dočasně stavební činnost v celé lokalitě Fantovy louky. Cílem je zabránit stavbám, které by mohly ztížit budoucí využití území podle připravované změny. Podle právní analýzy města vlastníci nebudou mít nárok na náhradu škody, protože od účinnosti současného územního plánu už uplynulo více než pět let.
Co bude dál
Pokud zastupitelé zadání schválí, projektant zpracuje návrh změny územního plánu lokality Fantova louka. Ten bude následně projednáván s dotčenými orgány veřejně.
Co to znamená pro obyvatele
Fantova louka se řeší už několik let a prosincové zastupitelstvo může být dalším důležitým krokem. Rozhodnutí o změně územního plánu a případné stavební uzávěře tak může nastínit, jak se bude s lokalitou nakládat v příštích letech.
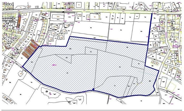
foto: Návrh výboru pro územní plánování: Studie řešeného území – zeleně je označen severní polygon, kde by měla být plocha určená k zástavbě. O tom budou rozhodovat zastupitelé ve středu 2. prosince. / MěÚ Příbram
Tip redakce: Pokud nechcete, aby vám unikly aktuální informace, staňte se fanoušky naší stránky na Facebooku a budete 24 hodin denně v obraze.
zdroj: Městský úřad Příbram
autor: Ludmila Zelenková
Další články
Zákaz sekání o nedělích? Příbram chystá vyhlášku, která změní víkendy
Město Příbram připravuje novou obecně závaznou vyhlášku, která má omezit hlučné …
BLESKOVÁ ZPRÁVA
Slunce vítá novou sezónu v Podbrdském muzeu
S prvními jarními paprsky přichází i nová muzejní sezóna. Podbrdské muzeum v Rožmitále …
Který fotbalový klub je na Příbramsku nejoblíbenější? Hlasujte v naší anketě
Fotbal má na Příbramsku silnou tradici a své fanoušky napříč generacemi. Každý víkend …
ANKETA
Vrchní soud potvrdil muži z Příbramska 15 let vězení za otravu matky metanolem
Za otrávení své matky metanolem si muž z Příbramska odpyká 15 let vězení. Trest mu v …
AKTUÁLNĚ
Sen o Bali skončil ztrátou 50 tisíc. Policie varuje před nákupem zájezdů přes sociální sítě
Vidina exotické dovolené, slunce a odpočinku se dvěma ženám během chvíle proměnila v …
KRIMI
Dálnice D4 je neustále pod kontrolou dronů a umělé inteligence
Nová část dálnice D4, která vznikla jako první český dálniční projekt formou PPP, má …
DOPRAVA
Petr Svoboda z Příbrami chce do Survivoru. Maká každý den a výzvy plní i podle fanoušků
Petr Svoboda z Příbrami má sen, který by většina lidí vzdala po prvním pokusu. On ne. …
NEPŘEHLÉDNĚTE
Parkovací dům v Příbrami se konečně plní. Proč je venkovní parkoviště dražší a co město chystá dál
Parkovací dům u vlakového a autobusového nádraží byl jedním z nejsledovanějších …
POLITIKA
Bydlení nejen v Příbrami: Mladí už na vlastní byt jen tak nedosáhnou
Ještě před pár lety se otázka bydlení brala jako něco, co se prostě vyřeší. Člověk …
NÁZOR
Auta v Milínské ulici blokují dopravu po srážce
Dopravní nehoda dvou osobních vozů se stala v Milínské ulici v Příbrami před 14. …
AKTUALIZOVÁNO




