Příbram rozhodla o Fantově louce: zastupitelé schválili změnu územního plánu, stavební uzávěra zatím jen doporučena
PŘÍRODA
5. prosince 2025 (07:17)
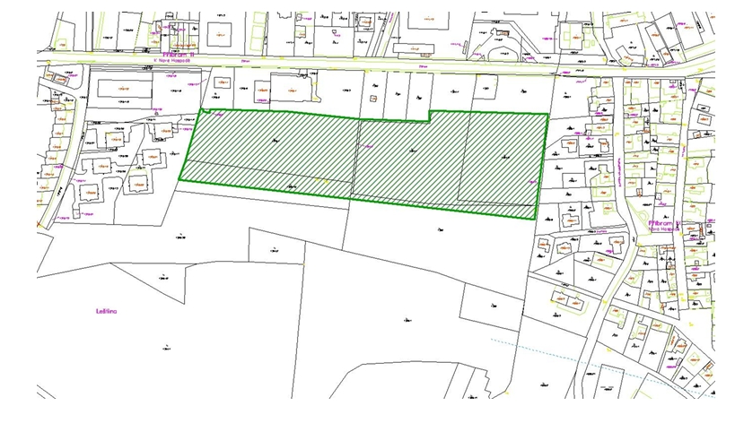
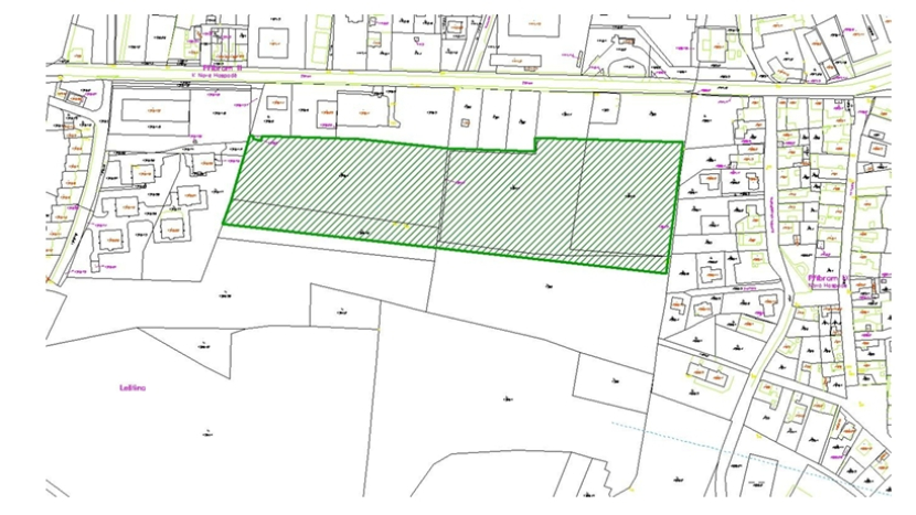
foto: Plocha severního polygonu je na podkladě katastrální mapy. / MěU Příbram
Na středečním zasedání 3. prosince zastupitelé Příbrami schválili zadání Změny č. 4 Územního plánu, která se týká lokality Fantova louka. Hlasování proběhlo poměrně hladce a znamená další krok v dlouho diskutované otázce, jak se s územím naloží.
O čem se hlasovalo
Zastupitelé měli na stole čtyři konkrétní body, které všechny hladce schválili:
Zastupitelé měli na stole čtyři konkrétní body, které všechny hladce schválili:
- Zda se změna územního plánu vůbec začne pořizovat.
- Schválení zadání změny, na jehož základě projektant připraví návrh.
- Sloučení jednání s dotčenými orgány a veřejností, aby se proces zjednodušil.
- Doporučení stavební uzávěry – zastupitelstvo ji samo vyhlásit nemůže, ale doporučilo radě města, aby ji projednala.
Severní polygon (Fantova louka): Změna prověří možnost zástavby pouze v severní, suché části území. Podmínkou bude povrchové zakládání staveb a řešení dešťových vod tak, aby nebyl narušen mokřadní charakter jižní části louky.
Jižní část zůstane chráněná kvůli výskytu zvláště chráněných druhů a unikátnímu vodnímu režimu.
Z územního plánu budou vypuštěny původně navržené dopravní a technické stavby. Územní plán se upraví podle nových právních předpisů a nadřazené dokumentace.
Stavební uzávěra zatím jen doporučena
Zastupitelé pouze doporučili radě města, aby se stavební uzávěrou zabývala. Pokud bude vyhlášena, zakáže dočasně stavební činnost v celé lokalitě Fantovy louky, aby se předešlo komplikacím při přípravě změny. O jejím vyhlášení ale rozhoduje výhradně rada města, nikoli zastupitelstvo.
Proč se změna připravuje
Rozhodnutí vychází z odborných posudků. Hodnocení vlivu na životní prostředí (2022) potvrdilo výskyt chráněných druhů a nevhodnost zástavby jižní části.
Hydrogeologický posudek (2023, doplněný 2025) ukázal, že severní část lze za přísných podmínek využít, aniž by došlo k narušení mokřadu.
Co zaznělo v diskusi
V diskusi zaznělo, že developery může rozhodnutí vést k úvahám o odškodnění, pokud jejich pozemky nebudou součástí nového územního plánu. Podle nich se od roku 2021 nezměnily žádné zásadní skutečnosti a město o současných podmínkách vědělo. Zastupitelé naopak zdůraznili, že prioritou je ochrana Fantovy louky, ale zároveň je nutné hledat kompromis mezi rozvojovými plochami a ochranou přírody.
Co to znamená pro obyvatele
Fantova louka se řeší už několik let a prosincové zasedání přineslo jasný posun: zastupitelé schválili zadání změny, doporučili Radě města projednat stavební uzávěru a proces se posouvá k přípravě návrhu. Pro obyvatele to znamená, že lokalita zůstává chráněná, ale zároveň se otevírá možnost omezené zástavby v severní části.
Jižní část zůstane chráněná kvůli výskytu zvláště chráněných druhů a unikátnímu vodnímu režimu.
Z územního plánu budou vypuštěny původně navržené dopravní a technické stavby. Územní plán se upraví podle nových právních předpisů a nadřazené dokumentace.
Stavební uzávěra zatím jen doporučena
Zastupitelé pouze doporučili radě města, aby se stavební uzávěrou zabývala. Pokud bude vyhlášena, zakáže dočasně stavební činnost v celé lokalitě Fantovy louky, aby se předešlo komplikacím při přípravě změny. O jejím vyhlášení ale rozhoduje výhradně rada města, nikoli zastupitelstvo.
Proč se změna připravuje
Rozhodnutí vychází z odborných posudků. Hodnocení vlivu na životní prostředí (2022) potvrdilo výskyt chráněných druhů a nevhodnost zástavby jižní části.
Hydrogeologický posudek (2023, doplněný 2025) ukázal, že severní část lze za přísných podmínek využít, aniž by došlo k narušení mokřadu.
Co zaznělo v diskusi
V diskusi zaznělo, že developery může rozhodnutí vést k úvahám o odškodnění, pokud jejich pozemky nebudou součástí nového územního plánu. Podle nich se od roku 2021 nezměnily žádné zásadní skutečnosti a město o současných podmínkách vědělo. Zastupitelé naopak zdůraznili, že prioritou je ochrana Fantovy louky, ale zároveň je nutné hledat kompromis mezi rozvojovými plochami a ochranou přírody.
Co to znamená pro obyvatele
Fantova louka se řeší už několik let a prosincové zasedání přineslo jasný posun: zastupitelé schválili zadání změny, doporučili Radě města projednat stavební uzávěru a proces se posouvá k přípravě návrhu. Pro obyvatele to znamená, že lokalita zůstává chráněná, ale zároveň se otevírá možnost omezené zástavby v severní části.
Tip redakce: Pokud nechcete, aby vám unikly aktuální informace, staňte se fanoušky naší stránky na Facebooku a budete 24 hodin denně v obraze.
autor: Ludmila Zelenková
Další články
Slyšíte ten podivný zvuk z výšin? To krajinou znovu táhnou jeřábi popelaví
Začátek jara v naší krajině často neoznamují jen první květy nebo zpěv skřivanů. Možná …
NEPŘEHLÉDNĚTE
Pozor na podomní „řemeslníky“. Policie varuje hlavně seniory
Policisté upozorňují na případy podomních „řemeslníků“, kteří se pohybují po městech a …
Motorka spadla při nakládání. A pak si sama zavolala pomoc
Stačila chvilka nepozornosti při nakládání motocyklu a v Dobříši byl hned poplach. …
ZAJÍMAVOSTI
Hokejová horečka v Příbrami! HC Příbram míří do play-off a potřebuje podporu fanoušků
Velká chvíle pro příbramský hokej je tady. Tým HC Příbram si vybojoval postup do …
SPORT
/VIDEO/ V neděli virál, dnes bomba! Přinášíme nejlepší záběry legendárního Čmeláka
V neděli jsme na našich sítích sdíleli amatérské video práškovacího letadla Z‑37 …
FOTOGALERIE
Nájem v Domě Natura trvá. Opozice mluví o nevyužitých budovách, radnice o komplikované rekonstrukci
Odbor životního prostředí sídlí v pronajatých prostorách Domu Natura od roku 2023. …
POLITIKA
Nový nepřítel Itálie? Po ananasu přichází smažák na pizze. A Příbram se ptá: dorazí tahle bomba i k nám?
Český internet má nový hit. Zatímco se svět ještě nevzpamatoval z nekonečné debaty o …
FAST FOOD
Nikdy jsme nebyli víc propojení. A nikdy víc sami
Večer, kdy se nic neděje. Telefon leží na stole, obrazovka je tmavá a ticho v bytě …
LIFESTYLE
Dobrovolní hasiči ve Středočeském kraji lákají stále více dětí. Sborům ale chybějí vedoucí mládeže
Zájem o členství dětí a mládeže u dobrovolných hasičů ve Středočeském kraji v poslední …
NEPŘEHLÉDNĚTE
Neštěstí v Sedlci-Prčici: Když se pokus o rychlé zatápění změní v tragédii
Nedělní dopoledne v Sedlci-Prčici na Příbramsku připomnělo, že největší nebezpečí …




